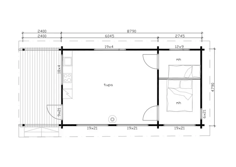
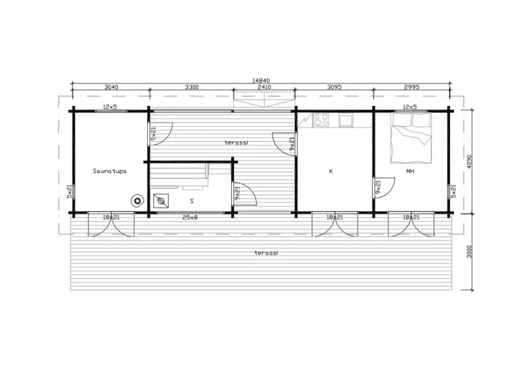
Hirsimökki asiakkaan toiveiden mukaisesti, valmiista malleistamme, asiakkaan omien suunnitelmien pohjalta tai yhdessä suunnitellen. Kaikkia valmiita mallejamme voidaan muokata asiakkaan toiveiden mukaan ja kaikki rakennukset saadaan tehtyä harja- tai pulpettikattoisena.
Materiaalitoimitus voidaan räätälöidä asiakkaan toiveiden mukaan pelkästä hirsikehikkotoimituksesta täydelliseen materiaalitoimitukseen tai jotain siltä väliltä.
Pienemmät mallit voidaan toimittaa myös valmistoimituksena. Valmistoimituksessa hirsimökki rakennetaan täysin käyttövalmiiksi tehtaalla ja toimitetaan asiakkaalle täysin valmiina.














